电力房母线槽技术分析

时间:2021-08-20
来源:广东尊龙凯时网址电气自动化科技有限公司
返回

前言

随着电力业务的发展和智能电网的升级,电力数据中心对供电系统的可靠性和智能维护要求越来越高。数据中心机柜端配电设计要满足传统机房的配电功能,还应满足远期设备扩容;同时,尽可能减少设备扩容对已投运设备的影响。供电系统除满足高可靠性外,还应该具备强大的监控功能,机房运维人员随时可以了解机柜负载情况、各配电分支回路的电气状态和不同负载机群的电量消耗等。
当前,机房的配电容量一般保持在一定的范围内,通常按照服务器机柜、刀片机柜、网络机柜、工作机柜、小型机机柜等,常规数据中心单机柜负荷一般在3kW~8kW之间[2]。根据各类设备功率不同,电气连接器接口标准也有所区别,这为供电基础配套实施带来了极大的挑战。传统落地式配电单元(列头柜)已不能满足越来越多的供电需求。
近年来,随着数据中心灵活性和多元化发展,一种更加灵活的机柜端设计方案逐步在电力机房中得到应用,即母线槽配电系统。目前已有大量大型数据中心采购母线槽设计方案,如Google、Facebook、阿里巴巴和腾讯等数据中心[3]。母线槽在电力行业作为一种导线应用已经有几十年的历史,但是对于电力数据中心应用而言,则比较新颖,应用案例不多。与传统电缆方式对比,母线槽具备更加可靠的安全性、接口电阻和温升控制也更加优越。


01丨母线槽结构原理

母线槽是由铜、铝母线柱构成一个封闭金属装置,用来为分散系统各个元件分配较大功率。母线槽以铜或铝作为导体、用非烯性绝缘支撑,然后封装到金属槽中形成的新型导体[4]。机房母线槽的额定电压380V,适用于交流50Hz,额定电流250A~6300A的三相四线制或三相五线制供配电工程中,它具有容量大、装拆容易、施工周期短等特点。


1.1分类及发展
按用途分,母线槽一般分始端母线槽、直通母线槽、L型垂直弯通母线、Z型垂直偏置母线、T型垂直三通母线、X型垂直四通母线等,以及有关附件及紧固装置[4]。按绝缘方式,分为空气式、密集式和高强度三种插接母线槽。按其结构及用途,可分为密集绝缘、空气附加绝缘、空气绝缘、耐火绝缘等;按其外壳材料分为钢外壳、铝合金外壳和钢铝混合外壳母线槽[5]。
母线槽的发展已经经历三代,第一代为空气型母线槽、第二代为密集型母线槽、第三代为复合绝缘性母线槽,母线槽的发展技术日臻完善和成熟。
1.2优点分析
母线槽以铜排或铝为导体,电流容量很大且电气性能、机械性能好。母线槽的外壳为金属,具有不燃烧、安全可靠性且使用寿命长等特点。与传统电缆比较,管道或桥架所占位置较少,对于大型建筑物的施工和线缆排布非常有利[4]。
母线槽的主要特点如下:(1)容量大、压降很小、短路负载能力强;(2)可靠性高;(3)外形小且美观、重量轻;(4)施工连接方便,检查简单。 
1.3缺点分析
母线槽作为一种新型的末端供电技术,同样存在以下不足之处:(1)防护等级:目前行业主流品牌机房母线槽多采用空气型母线,防护等级为IP40。安装时需考虑空调冷凝水防护问题,如主机房地板下安装空调水管,则不建议采用地板下安装方案;(2)对机柜顶部空间要求相对较大,对净高较小的机房,安装条件可能存在限制;(3)智能监控采集功能:机房母线槽对主干和每个机柜末端的用电参数进行监控采集,需另外敷设通讯线缆,工序上相比精密列头柜复杂。


02丨机房母线槽组成
电力机房专用母线槽系统由六部分构成:线槽主体、端部馈电模块、线槽连接模块、接线盒、监控模块和通讯模块。
2.1母线槽主体
外壳提供线槽保护,提高热稳定性,满足各种安装方式,如竖直吊装或者水平安装,侧边可贴标识。导电铜排是根据载流量需求选择不同截面,表面镀锡,增强抗腐蚀性并减小接触电阻的电解铜。表面的绝缘材料具备良好的可短路电流能力。
2.2端部馈电模块
端部馈电模块用于将电力接入母线槽系统。端部馈电模块内置断路器、监控模块以及通讯模块等,断路器规格按每列负载需求配置。
2.3线槽连接模块
线槽连接模块用于端部馈电模块与母线槽主体,线槽主体与主体之间,线槽主体与弯头之间的连接。
2.4连接盒
接线盒可以在母线槽主体上安装,接线盒内置控制空开及给机柜供电的插座。目前行业上,接线盒在母线槽主体上安装,大多数均支持热插拔方式,灵活卡位固定,方便随时为扩容负载提供电气连接。接线盒在母线槽主体上具体安装位置行业上基本由两种设计情况,固定安装和灵活安装,Schneider等供应商采用固定式位置安装,即母线槽主体上每隔600 mm预留一个安装孔位提供接线盒安装。PDI、Startline等供应商可在主体上任何位置安装[6]。对不同尺寸规格机柜摆放而言,无疑后者更加适合机房的设计。
2.5监控模块
监控模块分为末端及主控单元两部分。末端单元为机房母线槽通过在端部馈电模块、接线盒等部件配置智能化电量仪等电气采集模块,可即时采集功率、电流、电压等电气数据。主控单元包括硬件主控单元和软件管理平台。
2.6通讯模块
通讯模块在方式上基本支持行业上主流通讯方式,部分厂家还同时支持铜缆和无线介质SNMP管理,增加的母线的智能化管理。实物如图1所示。

图1  母线槽实物图
Fig.1  Physical pictures of busway


03丨机房母线槽设计
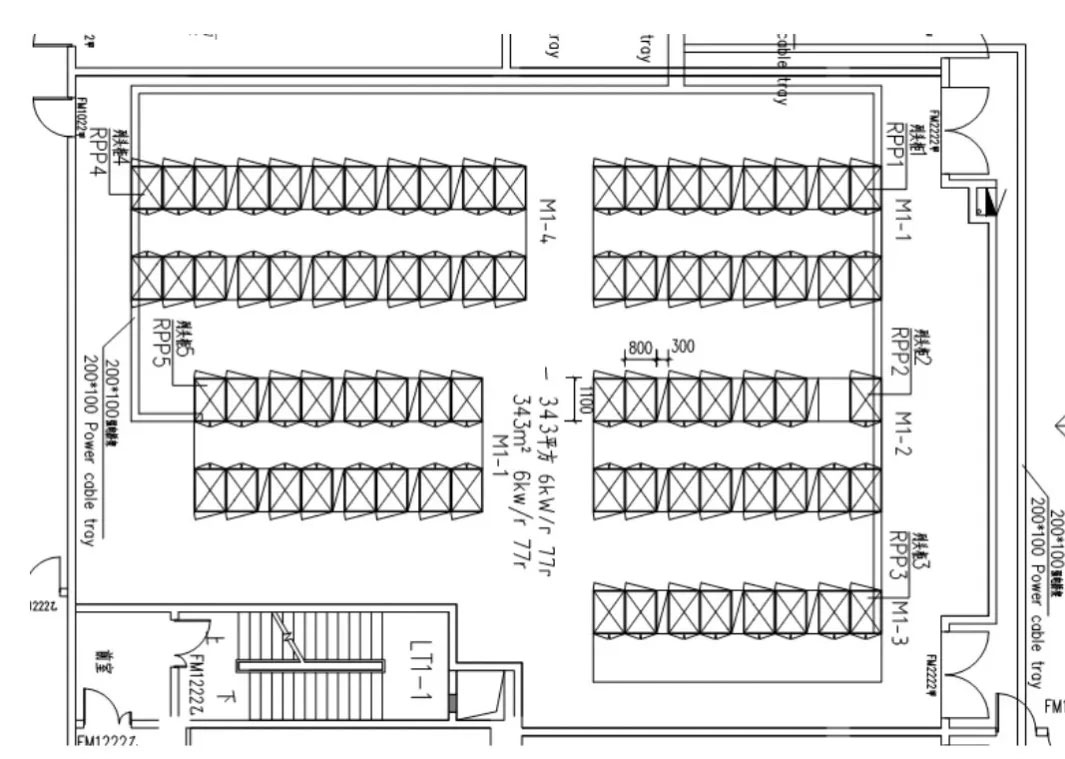
本文以某约300平米的电力机房为例,进行母线槽方案和传统列头柜方案设计比较。该区域可布置9列机柜,每个列头柜对就近两列机柜供电,每个机柜尺寸为800mm×1100mm。如下图2所示:




图2  母线槽平面示意图
Fig.2  Schematic diagram of busway


方案1:每列机柜上方悬吊双母线槽供电,每条母线槽上的接线盒安装两个空开和两个工业插座,分别为该列的两面机柜供电,支持即插拔方式,简易方便业务扩容和功能延伸。
方案2:如果采用传统的精密列头柜配电方案,则需为两列机柜配置1个精密列头柜,并向每面机柜提供双电源供电。如图3所示。


图3 精密列头柜供电示意图
Fig.3 Schematic diagram of Precision power distribution cabinet

3.1母线槽主体配置
每个机柜平均功率按终期需求6 kW进行计算,按平面布置,机房中每列最多为8面机柜,每一列机柜功率为P=8×6 kW=48 kW,长期最大工作电流I=48/(0.8×3×0.22)=90 A。


图4 母线槽供电示意图
Fig.4 Schematic diagram of busway supply

母线截面一般应按最大长期工作电流选取,在年均负荷较大且母线槽距离较长时,一般比按最大长期工作电流选择的母线槽截面要大些[7-8]。本案例为年均负荷大、且距离较长的情况,末端母线槽规格按160 A配置,即每一列机柜配置2条160 A母线槽,分别从主备供UPS电源接入。


3.2端部配电模块配置
端部馈电模块由每一列机柜对应的主备供母线槽各配置1个接入配电盒,与主干母线槽的插接箱间采用电缆连接。
3.3机柜端馈电盒配置
主备供末端母线槽上安装机柜端馈电盒,对于服务器机柜和存储机柜配置32 A开关,对工作站机柜和网络机柜配置16A开关,通过工业连接器与机柜上的PDU插排进行连接。
3.4智能监控和通信功能配置
监控系统采集功能包括开关状态、电量、功率、功率因数、电压等。通信功能为通过末端母线槽供电监控平台向机房动力环境监控系统开放接口并提供监测数据。
3.5母线槽接地
传统的保护地线PE线放置在母线槽内一侧,而新型母线槽采用外壳做PE整体接地。在母线槽强制性标准GB 7251.1的7.4条电击防护的7.4.3.1.5条中规定,如果采用的措施能够保证电路有持久良好的导电能力,而且载流容量足以承受成套设备中流过的接地故障电流,那么组装成套设备的各种金属部件则被认为能够有效地保证保护电路的连续性[9-10]。


04丨方案对比
针对方案1的母线槽技术和方案2的传统精密列头柜方案,其差异和优缺点对比分析如下:

4.1技术对比
1)散热性
机房母线槽不同于国内传统的密集型母线槽,选用开放式设计,载流铜排直接与空气接触,利用空气传导散热,并通过紧密接触的钢制外壳,把热量散发出去[11]。另外,母线槽外部铝壳除起到保护作用外,表面还经过阳极化处理,可增强散热能力;铜排表面镀镍,降低接触电阻,降低电压降,减少损耗。传统的列头柜加电缆方式,电缆的绝缘材料既是绝缘材料,又是隔热材料,在机柜数量众多的情况下,电缆会聚集较多,较难散热,因此电力电缆在桥架内敷设时,为保证良好散热,一般最多允许敷设2层[12]。因此母线槽的散热性能和电缆相比更加优越。
2)可维护性
传统的电缆方式,因其材料易磨损和易老化,且寿命较短等因素,需要定期进行检查和维护,到使用年限后还需更换。而母线槽为金属架构,维护容易,日常维护通常仅需测量外壳和穿芯螺栓的温升、进线箱的接头温升等而已[13]。
3)过载能力
电缆所用的绝缘材料常期工作温度一般为95~105 ℃,母线槽的过载能力大大高于电缆。另外,电缆的最大载流范围为1 000 mm截面积,额定电流1 600 A,而母线槽额定电流最大能做到6 300 A[14]。
4)空间布置
母线槽可节省配电柜或列头柜占用的空间,可避免使用电缆,从而减少布线的困难,以图1为例,可节约6个列头柜空间。
5)设计和安装
设计简单,布局容易,安装步骤简单,无需专业工具。
6)扩容和总拥有成本(TCO)
母线槽安装后可根据需要重新配置,可在设计时预留容量,未来扩容方便,总拥有成本较低。
7)环保特性
母线槽全部材料都选用无毒阻燃材料,99%的材料可回收,环保特性较好,而电缆则有一定的污染性[15]。

4.2投资对比
针对方案1和方案2不同机柜末端配电方案,两者的投资造价对比如下,如附表1所示。
对比列头柜,电缆,电缆桥架等总体费用,母线槽设计方案的总体投资和传统的列头柜加电缆方式基本相当,但是后期维护费用比电缆要低,总体而言总拥有成本TCO较低。
4.3机房母线槽适用性分析
综上所述,对机房母线槽技术选用应考虑不同场景的适用性,分析如下:
1)对机柜布置密度要求高、布置机柜数量最大化情况下,建议采用机房母线槽,可节省精密列头柜占用空间。
2)对同一主机房区内设备分期上架情况,建议采用机房母线槽,既保证上架设备不同功率和接口类型准备性,又可减低整体投资成本。
3)对UPS室与主机房区距离较远、且同时多个主机房区情况下可采用“主干封闭母线槽+机房母线槽”方案,避免电缆桥架规格过大和降低电缆敷设施工成本。对主机机房区靠近UPS室,且主机房区单一情况下,直接采用“主干电缆+机房母线槽”方案。
4)对机房净高限制、地板下存在空调水管情况下,不建议采用机房母线槽。


05丨结论
母线槽技术从上世纪50年代发展至今,已经从一代空气型到三代复合型发展,技术发展日臻完善,在互联网数据中心已经有了良好的应用。母线槽具备灵活性和扩展性,同一母排上可根据不同机柜负载大小不同而灵活分配,即类似网络带宽共享方式一样,功率负荷共享,如需扩容、调整相(三相不平衡时),只需相应调整对应的插接箱。机房母线槽方案是一种能有效减少电缆的使用量的选择方式,对于集中供电模式电力机房具有实际应用意义。本文通过与传统电缆和列头柜方式,对比分析母线槽的技术原理、技术特点、总投资费用以及后期维护成本等,母线槽具备良好的供电系统可靠性和成本优势,值得推广应用。母线槽具有稳定可靠、配电效能高、散热好、电压降低、耐机械冲击和安装简便等特点,是一种电力数据中心良好的末端供电方式。随着智能电网、电力大数据、人工智能、物联网业务发展,电力数据中心正在加速建设中,相信电力母线槽技术会得到广发的应用和推广。

参考文献;
[1]朱利伟. 数据中心机房精密配电解决方案 [J]. 智能建筑与城市信息, 2008(8):25-28.
ZHU L W. Data center computer room precision power distribution solution [J]. Intelligent Building & Smart City, 2008(8):25-28.
[2] 闫龙川, 陈亮,赵子岩. 支撑电力大数据的云计算数据中心体系架构研究 [J]. 供用电, 2014(8):37-40.
YAN L C,CHEN L,ZHAO Z Y. Research on cloud computing data center architecture supporting power big data [J].  Distributiong & Utilizationg, 2014(8):37-40.
[3] 杨萌蕾. 中低压母线槽在数据中心机房的应用研究 [J]. 电子制作,2015(增刊2):23-24.
YANG M L. Application research of medium and low voltage busway in data center computer room [J]. Practical Electronics, 2015(Supp.2):23-24.
[4]江显奇. 母线槽在电气设计中的应用及优缺点 [J]. 现代建筑电气, 2013(增刊1):37-39.
JIANG X Q. Application and advantages and disadvantages of busway in electrical design [J]. Modern Architecture Electric, 2013(Supp.1):37-39.
[5] 张红军. 母线槽的分类及合理选用 [J]. 装备制造技术, 2013(8):251-252.
ZHANG H J. Classification and reasonable selection of busway [J]. Equipment Manufacturing Technology, 2013(8):251-252.
[6] 肖兆斌. 低压母线槽安装与应用探讨 [J]. 机械研究与应用, 2017, 30(5):169-171+176.
XIAO Z B. Discussion on installation and application of low voltage busway [J]. Mechanical Research & Application 2017, 30(5):169-171+176.
[7] 金正风. 母线槽截面的选择 [J]. 低压电器, 2014(7):68-70.
JIN Z F. Busway cross section selection [J]. Low Voltage Apparatus, 2014(7):68-70.
[8]程青. 母线槽经济截面的选择 [J]. 低压电器,2007 (2) :45-47.
CHENG Q. Selection of the economic section of the busway [J]. Low Voltage Apparatus, 2007 (2):45-47.
[9] 李敏. 外壳防护等级的选择与应用 [J]. 环境技术, 2017, 35(5):62-64.
LI M. Selection and application of enclosure protection grade [J]. Environmental Technology, 2017, 35(5):62-64.
[10]白小虎. 母线槽接地系统新技术——整体接地式母排 [J]. 建筑电气, 2002, 21(1):21-22.
BAI X H. New technology for busway grounding system - integral grounding busway [J]. Building Electricity, 2002, 21(1):21-22.
[11] 王起福. 浅谈分支电缆与母线槽的选择与运用 [J]. 中国新技术新产品, 2017 (8) :97-98.
WANG Q F. Talking about the selection and application of branch cable and busway [J]. New Technology & New Products of China, 2017 (8):97-98.
[12]白云鹏. 电力电缆敷设相关问题探讨 [J]. 科技创新与应用, 2012 (22) :122-122.
BAI Y P. Discussion on problems related to power cable laying [J]. Technology Innovation and Application, 2012 (22):122-122.
[13] 唐志杰.浅谈母线槽安装及质量控制 [J]. 企业技术开发, 2012,31(Z1):108-110
TANG Z J. Discussion on busway installation and quality control [J]. Technological Development of Enterprise, 2012, 31(Z1):108-110.
[14]刘国柱,杨剑波.合理选择工程应用中的低压电力电缆与母线产品 [J]. 低压电器, 2011 (16) :51-56.
LIU G Z, YANG J B. Reasonable selection of low-voltage power cables and busway products in engineering applications [J]. Low Voltage Apparatus, 2011 (16):51-56.
[15]康文龙, 吕鹏, 王瑛霖. 基于绿色制造理论的母线导体材料研究与应用 [J]. 热加工工艺, 2014, 43 (18) :91-93.
[16]TANG W L, LV P, WANG Y L. Research and application of bus conductor materials based on green manufacturing theory [J]. Hot Working Technology, 2014,43 (18) :91-93.




项目简介

申请单位:中国能源建设集团广东省电力设计研究院有限公司

项目名称:“数据中心关键技术研究”(EX03931W)

项目概述:主要研究内容为电力数据中心、调度机房、信息机房、自动化机房等相关关键技术的应用研究。

主要创新点 :随着国家对节能减排日益重视,如何降低机房的PUE(能效值),降低机房的碳排放量、节能环保绿色技术、数据中心关键设计研究等作为数据中心今后的发展方向,非常有必要对数据中心关键技术进行研究。项目的主要创新为:(1)数据中心暖通关键技术研究;(2)数据中心供配电关键技术研究;(3)数据中心总承包项目管理方法研究;(4)数据中心BIM核心技术研究;(5)数据中心改造项目结构加固技术研究;(6)数据中心建设和运维成本分析研究。本论文主要是数据中心供配电关键技术进行研究,重点分析母线槽的组成架构、技术特点和应用优势。







诚心诚意为顾客提供专业、优质的服务
注册留言,我们会尽快与您联系